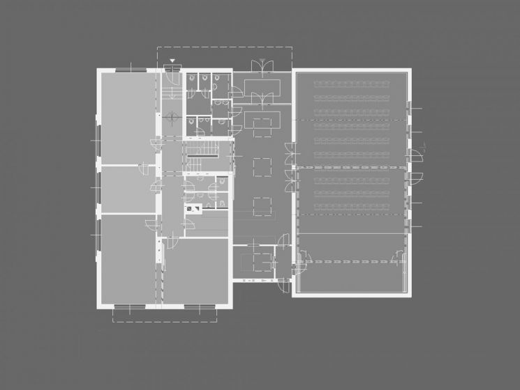
Pfarrsaal Ternitz

Auftraggeber:

Röm. - Kath. Pfarrkirche Ternitz

Bauamt der Erzdiözese Wien

Zeitraum:

2003 - 2005

Beschreibung:

Neue Verwaltungsräumlichkeiten und zwei Seminarräume im Erd- geschoß.

Drei Wohneinheiten im 1. und 2. Obergeschoß.

Neuer Pfarrsaal für 120 Personen.

Erschließung über neuen Wind- fang, Foyerbereich als Binde- glied zwischen Pfarrhaus und Pfarrsaal.

Nutzflächen:

Pfarrhaus: 805m²

Pfarrsaal:  280m²

Gesamt: 1.085m²